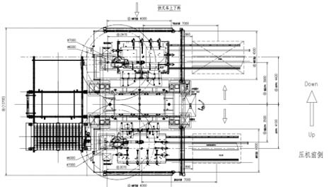
江鈴股份某廠沖壓自動化生產線主要包括:機器人拆垛/上料系統、雙料檢測系統、機器人下料系統、板件堆垛系統、整線圍欄防護、控制系統等。 本項目是利用試模壓機進行產品板料落料,提高壓機的利用率;采用2臺機器人及系統進行板料的上下料。 自動化生產線壓機(單動)滑塊行程次數為18 SPM,汽車側圍、門內板等中大型沖壓件板料落料生產節拍達12 SPM,整線自動化開動率≥98%。
自動化生產線布局
試模壓力機自動落料生產線
版權所有 Copyright?偉本智能機電(上海)股份有限公司 網站建設備案號:滬ICP備17037445號